ГОСТ 23120-78 Лестницы маршевые, площадки и ограждения стальные. Технические условия
ГОСТ
Скачать ГОСТ в PDF или DOC бесплатно
Основная информация
Обозначение:
ГОСТ 23120-78
Статус:
Заменен
Тип:
ГОСТ
Название русское:
Лестницы маршевые, площадки и ограждения стальные. Технические условия
Название английское:
Steel flights of steps, stair landings and railings. Specifications
Даты и сроки
Дата издания:
02-01-02
Дата введения в действие:
01-01-79
Дата завершения срока действия:
03-01-17
Применение и описание
Область и условия применения:
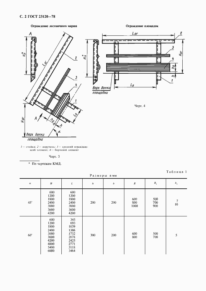
Настоящий стандарт распространяется на стальные маршевые лестницы, площадки и ограждения к ним, применяемые в производственных зданиях и сооружениях, возводимых и эксплуатируемых в районах с расчетной температурой минус 65 град. С и выше
Связи и замены
Заменяющий:
ГОСТ 23120-2016
Описание стандарта
ГОСТ 23120-78 Лестницы маршевые, площадки и ограждения стальные. Технические условия
Страницы стандарта









