ГОСТ 1759.1-82 Болты, винты, шпильки, гайки и шурупы. Допуски. Методы контроля размеров и отклонений формы и расположения поверхностей
ГОСТ
Скачать ГОСТ в PDF или DOC бесплатно
Основная информация
Обозначение:
ГОСТ 1759.1-82
Статус:
Действует
Тип:
ГОСТ
Название русское:
Болты, винты, шпильки, гайки и шурупы. Допуски. Методы контроля размеров и отклонений формы и расположения поверхностей
Название английское:
Bolts, screws, studs and nuts. Tolerances. Control methods of dimensions and deviations of form and surface position
Даты и сроки
Дата издания:
01-01-09
Дата введения в действие:
01-01-83
Дата завершения срока действия:
01-01-11
Применение и описание
Область и условия применения:
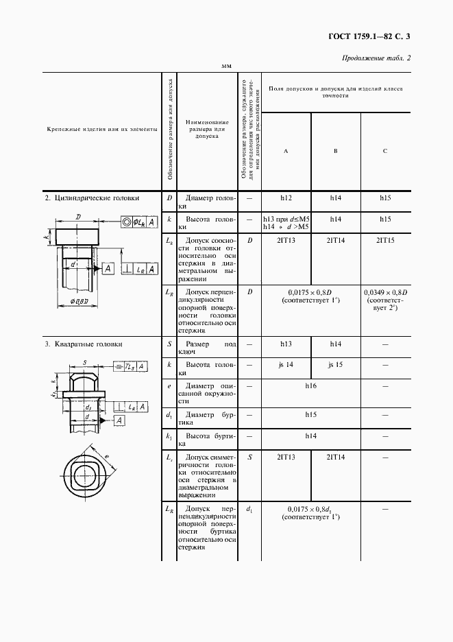
Настоящий стандарт распространяется на болты, винты, шпильки и гайки общемашиностроительного применения с резьбой от М1 до М48, а также на шурупы и самонарезающие винты (кроме размеров их резьбы), и устанавливает для них три класса точности - А, В, С и методы контроля размеров и отклонений формы и расположения поверхностей
Связи и замены
Заменяющий:
-
Взамен в части:
ГОСТ 1759-70 в части допусков и методов контроля размеров и отклонений формы и расположения поверхностей
Изменения и переиздания
Список изменений:
№0 от (рег. ) «Поправка к изменению» №1 от (рег. ) «Срок действия продлен»
Описание стандарта
ГОСТ 1759.1-82 Болты, винты, шпильки, гайки и шурупы. Допуски. Методы контроля размеров и отклонений формы и расположения поверхностей
Страницы стандарта

















